Beschreibung
Am Rande von Rüdlingen, umgeben von intakter Natur vermieten wir dieses grosszügig gestaltete, gut unterhaltene Einfamilienhaus mit eigenem Garten. Auf dem nach Süden ausgerichteten Sitzplatz, angrenzend an die Landwirtschaftszone, geniessen Sie die Sonne bis am späten Abend. Diese Liegenschaft wurde stets gut unterhalten und liebevoll gepflegt, so präsentiert sie sich heute in einem tollen Zustand.
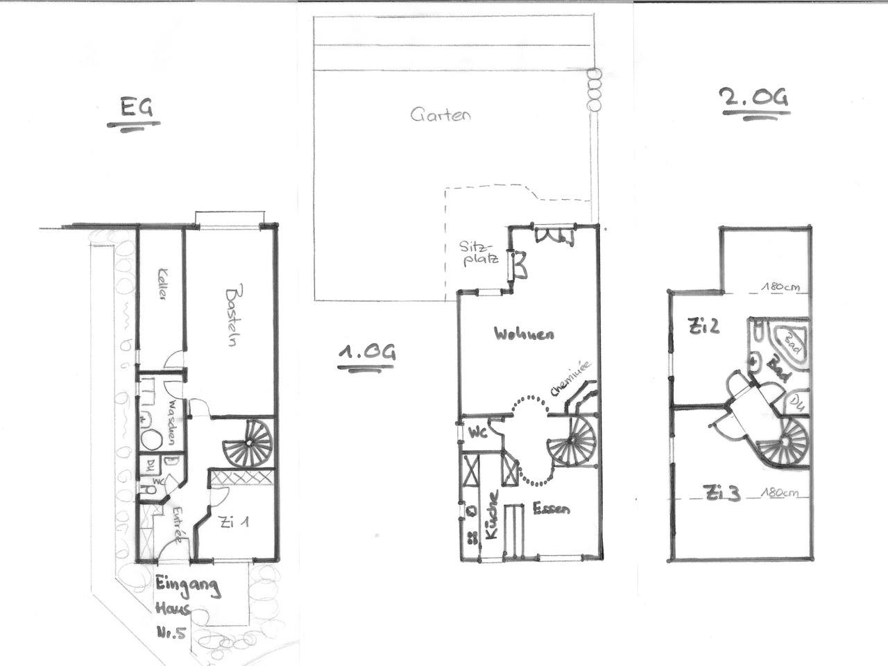
Detailliertes Raumprogramm:
EG: Eingang, eingebaute Garderobe, Zimmer 12 m2, Bad/Dusche, Waschküche, Keller 11 m2, Bastelraum 30 m2.
1.OG: Sehr helles Wohnzimmer 40 m2 mit Ausgang zum grosszügigen Sitzplatz und Aussenbereich, Essbereich 14 m2, offene Küche 10 m2, Tagestoilette
2.OG: Schlafzimmer 27 m2, Schlafzimmer 31 m2, Bad mit WC, Dusche, Badewanne
Estrich: grosser ausgebauter Estrich mit viel Stauraum
In der angrenzenden Tiefgarage kann ein Autoeinstellplatz dazu gemietet werden. Die Nebenkosten belaufen sich auf Fr. 340.- pro Monat.
Die Überbauung „Rhyblick“ liegt etwas ausserhalb des Dorfes auf einer Anhöhe zwischen Rüdlingen und Buchberg an einer ausgesprochen ruhigen Lage in schönster, naturbelassener Umgebung. Durch die Lage an einer Sackgasse ohne Durchgangsverkehr ist diese Liegenschaft auch für Familien mit Kindern bestens geeignet.
In nur 100 Meter Fussdistanz finden Sie die nächste Bushaltestelle mit besten Anbindungen an die S-Bahn in Rafz und Richtung Zürich.
Allenfalls kann dieses Haus auch käuflich erworben werden.
Wir laden Sie gerne auf einen persönlichen Rundgang durch dieses gemütliche Haus ein und zeigen Ihnen die gepflegte Liegenschaft gerne persönlich.
Rufen Sie uns an für einen Besichtigungstermin, wir freuen uns, von Ihnen zu hören
Detailliertes Raumprogramm:
EG: Eingang, eingebaute Garderobe, Zimmer 12 m2, Bad/Dusche, Waschküche, Keller 11 m2, Bastelraum 30 m2.
1.OG: Sehr helles Wohnzimmer 40 m2 mit Ausgang zum grosszügigen Sitzplatz und Aussenbereich, Essbereich 14 m2, offene Küche 10 m2, Tagestoilette
2.OG: Schlafzimmer 27 m2, Schlafzimmer 31 m2, Bad mit WC, Dusche, Badewanne
Estrich: grosser ausgebauter Estrich mit viel Stauraum
In der angrenzenden Tiefgarage kann ein Autoeinstellplatz dazu gemietet werden. Die Nebenkosten belaufen sich auf Fr. 340.- pro Monat.
Die Überbauung „Rhyblick“ liegt etwas ausserhalb des Dorfes auf einer Anhöhe zwischen Rüdlingen und Buchberg an einer ausgesprochen ruhigen Lage in schönster, naturbelassener Umgebung. Durch die Lage an einer Sackgasse ohne Durchgangsverkehr ist diese Liegenschaft auch für Familien mit Kindern bestens geeignet.
In nur 100 Meter Fussdistanz finden Sie die nächste Bushaltestelle mit besten Anbindungen an die S-Bahn in Rafz und Richtung Zürich.
Allenfalls kann dieses Haus auch käuflich erworben werden.
Wir laden Sie gerne auf einen persönlichen Rundgang durch dieses gemütliche Haus ein und zeigen Ihnen die gepflegte Liegenschaft gerne persönlich.
Rufen Sie uns an für einen Besichtigungstermin, wir freuen uns, von Ihnen zu hören
Lage
Sehr ruhige und idyllische Lage oberhalb des Rheins, umgeben von Natur. Die Bushaltestelle befindet sich in unmittelbarer Nähe.
Gemeinde
Rüdlingen liegt im Kanton Schaffhausen. Die Gemeinde Rüdlingen grenzt zusammen mit der Nachbargemeinde Buchberg an den Kanton Zürich, respektive an deutsches Gebiet
Aus dem ehemaligen Bauern- und Fischerdorf ist eine moderne Wohngemeinde mit einer leistungsfähigen Landwirtschaft geworden. Der Rebbau prägt die Landschaft. Mit der Mobilität, die das Auto gebracht hat, kam Rüdlingen in die Wohnreichweite der Agglomeration Zürich, Winterthur und Schaffhausen. Die Einwohnerzahl stieg von 394 im Jahr 1976 auf 761 Ende 2014.
Seit August 2011 bilden die Schulen in Rüdlingen und Buchberg zusammen mit der orientierungsschule einen gemeinsamen Schulverband. Mit diesem Zusammenschluss wird den Anforderungen an die heutige Schule Rechnung getragen.
Aus dem ehemaligen Bauern- und Fischerdorf ist eine moderne Wohngemeinde mit einer leistungsfähigen Landwirtschaft geworden. Der Rebbau prägt die Landschaft. Mit der Mobilität, die das Auto gebracht hat, kam Rüdlingen in die Wohnreichweite der Agglomeration Zürich, Winterthur und Schaffhausen. Die Einwohnerzahl stieg von 394 im Jahr 1976 auf 761 Ende 2014.
Seit August 2011 bilden die Schulen in Rüdlingen und Buchberg zusammen mit der orientierungsschule einen gemeinsamen Schulverband. Mit diesem Zusammenschluss wird den Anforderungen an die heutige Schule Rechnung getragen.
Verkehrsanbindung
Bushaltestelle in ca. 150 Meter Entfernung mit besten Verbindungen nach Rafz zur S-Bahn.
Erdgeschoss
Eingang und Korridor 14.5 m2, Zimmer 12 m2, Bad/Dusche 3.4 m2, Waschküche 6.1 m2, Kellerabteil 11 m2, Bastelraum 30.4 m2
1. Stock
Wohnen 40 m2, Essen 14.2 m2, Küche offen 10 m2, Korridor und Treppe 6 m2, WC 2.4 m2
2. Stock
Zimmer 27 m2, Zimmer 31.8 m2, Bad 6.4 m2, Korridor und Treppe 2.5 m2
Dachgeschoss
Sehr nützlicher Estrich, der grossen Stauraum bietet
Aussenbereich
Lauschiger und gut besonnter Gartensitzplatz mit Gartengerätehaus. Direkt angrenzend an Landwirtschaft.
Eigenschaften
Umgebung
- Ländlich
- Weinberg
- Bushaltestelle
- Kinderfreundlich
- Spielplatz
- Wanderwege
- Radweg
- Nahe einer Zollgrenze
Aussenbereich
- Garten
- Gartensitzplatz
- Ruhige Lage
- Mit Gartenhaus
- Parkplatz
Innenbereich
- Einstellhallenplatz
- Offene Küche
- Separate WC's
- Vorratskammer
- Keller
- Weinkeller
- Estrich
- Unmöbliert
- Cheminée
- Hell
- Haustiere gestattet
Ausstattung
- Moderne Küche
- Glaskeramik
- Kühlschrank
- Geschirrspüler
- Waschmaschine
- Wäschetrockner
- Private Waschküche
- Badewanne
- Dusche
- Kabelfernsehen
- Internetanschluss
Boden
- Fliesen
- Parkett
Zustand
- Gut
Ausrichtung
- Süden
- Westen
Besonnung
- Günstig
Aussicht
- Ländlich
Stil
- Klassisch
Distanzen
Bahnhof
2 km
Öffentliche Verkehrsmittel
200 m
Kindergarten
500 m
Primarschule
500 m
Sekundarschule
500 m
Geschäfte
500 m






















